Фильтр
Усильте безопасность с гидравлическими боллардами! Идеальное решение для контроля доступа и защиты территорий.
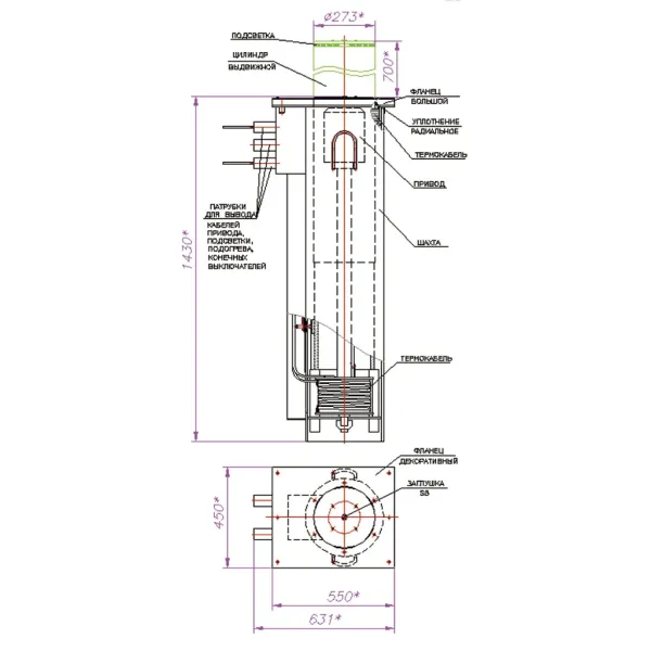
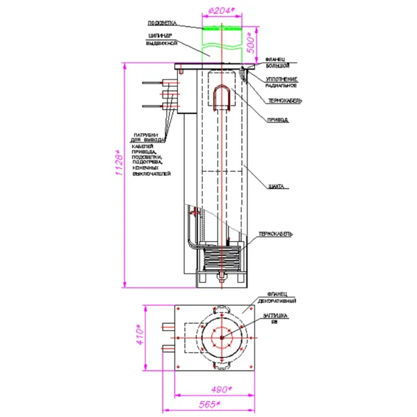
Гидравлические болларды выступают как незаменимые стражи, контролирующие доступ к самым защищаемым территориям. Эти устройства, подобно средневековым рыцарям, стоят на страже у врат ваших замков — будь то коммерческие центры, частные владения или государственные учреждения.
Гидравлические болларды отличаются от их стационарных собратьев тем, что они могут быть как невидимыми, так и непреодолимыми препятствиями на пути нежелательных гостей. В один момент они полностью скрыты под поверхностью земли, а в следующий — возвышаются, как непоколебимые солдаты, блокируя путь к вашей территории.
Преимущества гидравлических боллардов
Они обеспечивают высокий уровень безопасности, предотвращая несанкционированный доступ транспортных средств. Их надежность и долговечность делают их идеальным выбором для мест с высоким риском проникновения или террористических угроз. Кроме того, они устойчивы к погодным условиям и механическим повреждениям, что делает их незаменимыми в любых климатических условиях.
Недостатки гидравлических боллардов
Однако, как и любая технология, гидравлические болларды имеют свои недостатки. Они требуют регулярного технического обслуживания и могут быть более дорогими в установке по сравнению с другими типами боллардов. Также, в случае сбоя системы, они могут стать непреодолимым препятствием для экстренных служб или сотрудников, которым необходим доступ на территорию.
Итак, перед лицом выбора, директора по безопасности должны взвешивать преимущества и недостатки, учитывая специфику своих объектов. Гидравлические болларды — это не просто металлические столбы, это символы непреклонной защиты, которые могут стать ключевым элементом в системе безопасности вашего предприятия.
В конечном счете, выбор за вами. Гидравлические болларды — это инвестиции в безопасность, которые могут оказаться неоценимыми в моменты, когда ставки особенно высоки. Они не просто ограничивают доступ, они сохраняют ценности, которые защищают. И в этом их истинная ценность.
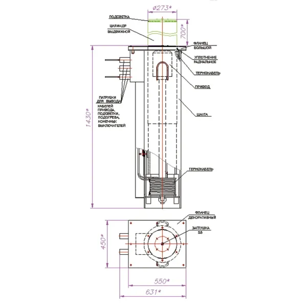
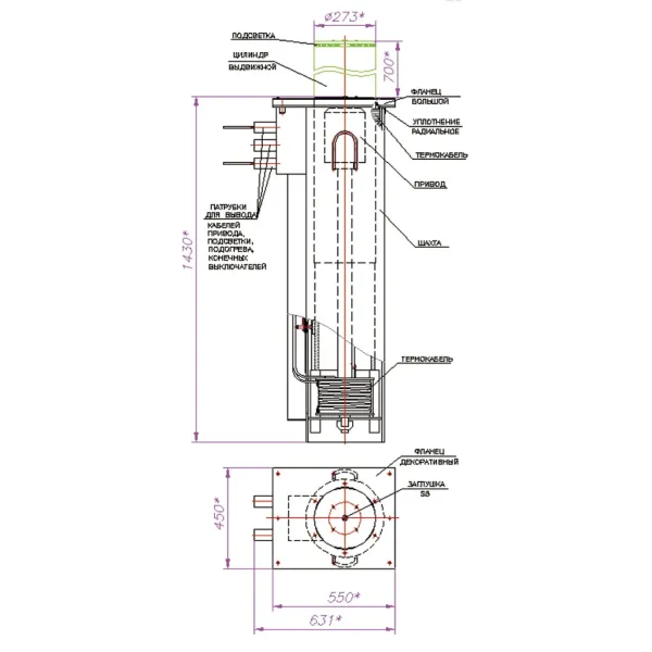
Гидравлические болларды выступают как незаменимые стражи, контролирующие доступ к самым защищаемым территориям. Эти устройства, подобно средневековым рыцарям, стоят на страже у врат ваших замков — будь то коммерческие центры, частные владения или государственные учреждения.
Гидравлические болларды отличаются от их стационарных собратьев тем, что они могут быть как невидимыми, так и непреодолимыми препятствиями на пути нежелательных гостей. В один момент они полностью скрыты под поверхностью земли, а в следующий — возвышаются, как непоколебимые солдаты, блокируя путь к вашей территории.
Преимущества гидравлических боллардов
Они обеспечивают высокий уровень безопасности, предотвращая несанкционированный доступ транспортных средств. Их надежность и долговечность делают их идеальным выбором для мест с высоким риском проникновения или террористических угроз. Кроме того, они устойчивы к погодным условиям и механическим повреждениям, что делает их незаменимыми в любых климатических условиях.
Недостатки гидравлических боллардов
Однако, как и любая технология, гидравлические болларды имеют свои недостатки. Они требуют регулярного технического обслуживания и могут быть более дорогими в установке по сравнению с другими типами боллардов. Также, в случае сбоя системы, они могут стать непреодолимым препятствием для экстренных служб или сотрудников, которым необходим доступ на территорию.
Итак, перед лицом выбора, директора по безопасности должны взвешивать преимущества и недостатки, учитывая специфику своих объектов. Гидравлические болларды — это не просто металлические столбы, это символы непреклонной защиты, которые могут стать ключевым элементом в системе безопасности вашего предприятия.
В конечном счете, выбор за вами. Гидравлические болларды — это инвестиции в безопасность, которые могут оказаться неоценимыми в моменты, когда ставки особенно высоки. Они не просто ограничивают доступ, они сохраняют ценности, которые защищают. И в этом их истинная ценность.






































































