SILAR ДПС 27.70.18ЭМ - электромеханический боллард. Электромеханические болларды с толщиной стенки 18 мм можно применять на стратегических объектах, так как конструктивно они полностью соответствуют гидравлическим моделям. Однако в отличии от гидравлических боллардов имеют коэффициент использования 25% поэтому их не желательно применять на проездах с высокой интенсивностью движения.
Электромеханический привод на основе шарико-винтовой пары с тормозной муфтой и системой ручного отпускания, отпускание происходит за счет подачи питания от резервного источника на устройство блокировки.
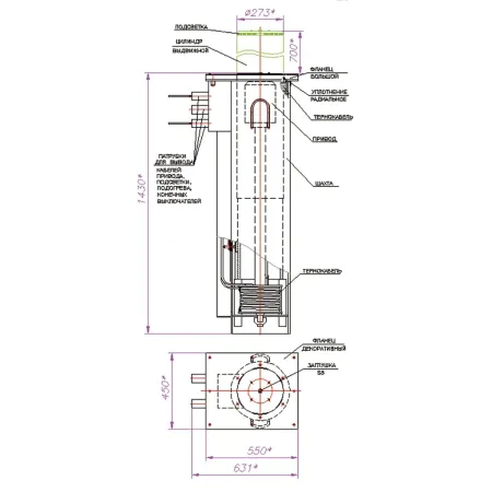
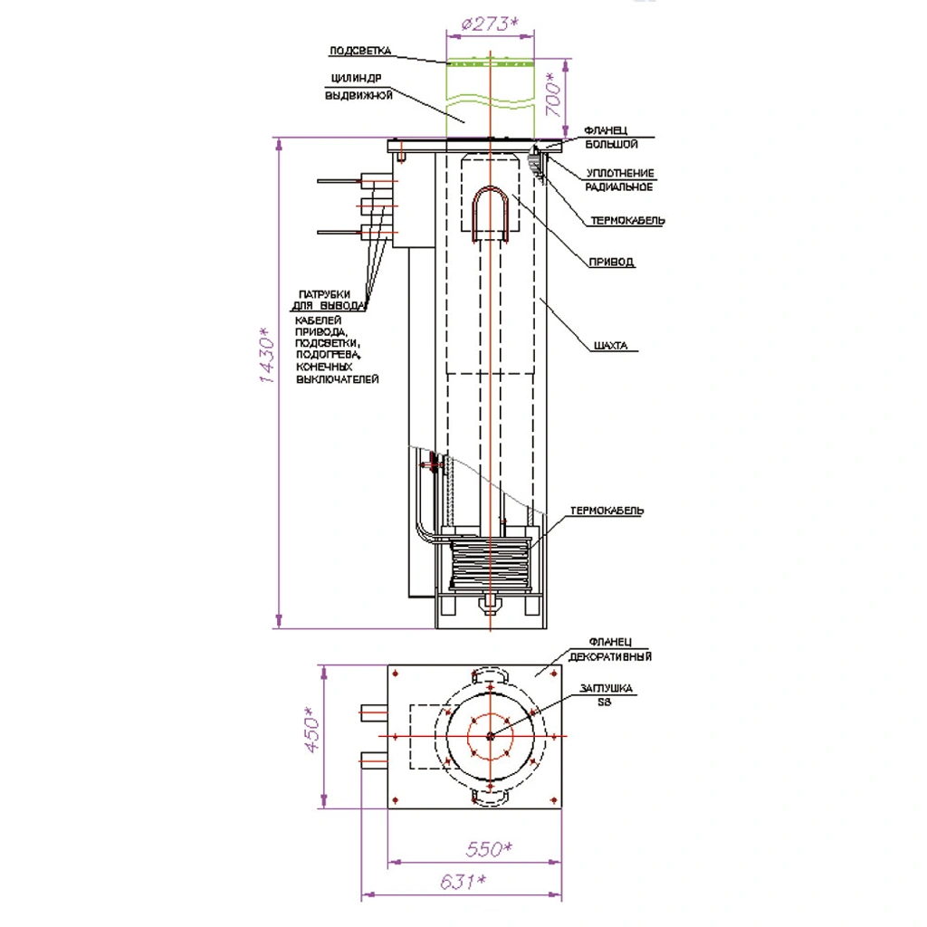
Диаметр столба: 270 мм. Высота подъемной части: 700 мм. Толщина стенки болларда: 18 мм. Скорость поднятия: 6 секунд. Напряжение питания: 380 В.
Блокиратор оснащен встроенной световой индикацией.
Вид климатического исполнения ДПС – УХЛ1 по ГОСТ15150 для эксплуатации на открытом воздухе в макроклиматических районах с умеренным и холодным климатом и температурой воздуха окружающей среды от минус 60 до плюс 40°С. Класс защиты – IP65.
Технические характеристики:
- Производитель: SILAR
- Модель: ДПС 27.70.18ЭМ
- Тип болларда: Электромеханический
- Исполнение: Противотаранный
- Высота болларда: 700 мм
- Диаметр болларда: 270 мм
- Глубина цоколя: 1350 мм
- Размер фланца: 490 мм
- Время подъема столба, сек: 6
- Энергия удара, Дж: 15 000
- Энергия разрушения (автомобиль массой 20т на скорости 40 км/ч), Дж: .250 000
- Встроенная подсветка: Да
- Толщина стенки столба: 18 мм
- Покрытие блокирующего элемента: Нерж. сталь.
- Рабочая температура: -60...+40°С
- Габаритные размеры столба, мм, не более: 450x631x1430
- Масса столба, кг, не более: 410
- Страна производства: России
Устройство и работа
Шахта представляет собой трубу с приваренными к ней фланцем, ручками для переноса и втулками для крепления большого фланца. На боковой стороне трубы расположен карман с патрубками Ø48 мм для вывода кабелей привода, подсветки и подогрева. В нижней части шахты приварено дно с отверстием для крепления актуатора, дренажными отверстиями и пазами для упоров.
Приводом является асинхронный трехфазный электродвигатель, который через передачу винт - гайка сообщает движение выдвижному цилиндру. Электродвигатель расположен в верхней части столба.
Выдвижной цилиндр является основным блокирующим заградительным элементом, представляет собой гладкую трубу с надетой на нее рубашкой из нержавеющей стали. Верхний фланец цилиндра имеет подсветку в виде светодиодной ленты, сигнализирующий о наличии препятствия.
Фланец большой вместе с шахтой являются несущей силовой конструкцией болларда. Он крепится к бетонируемой шахте.
Во фланце имеется проточка для радиального уплотнения. Сверху фланец закрыт декоративным фланцем из нержавеющей стали.
Конструкция предусматривает при необходимости обогрев столба в нижней и верхней части.
Работа ДПС осуществляется следующим образом.
В рабочем состоянии внутренний цилиндр (блокирующий элемент) выдвинут на высоту 700 мм над уровнем фланца, что исключает проезд автотранспорта.
При необходимости проезда с пульта дистанционного управления подается сигнал на пульт управления и блокирующий элемент опускается.
При снижении температуры окружающей среды ниже +5 °С необходимо в шкафу управления соответствующим автоматом включить подогрев столба - греющий саморегулирующий кабель (термокабель).
При наступлении теплого времени года (с температурой выше +5°С) – автомат отключить.
В случае сбоя электропитания необходимо использовать привод ручного опускания (подъёма) специальным ключом S8.
Для этого необходимо:
- снять заглушку с верхнего фланца выдвижного цилиндра насадкой S8,
- вставить этот же ключ в отверстие привода и привести цилиндр в движение.
Модификации противотаранных боллардов с электромеханическим приводом, нержавеющая сталь
- ДПС 20.50.10Эм - Заградительный, Диаметр 205 мм, Высота подъёма 500 мм, Толщина стенки 10 мм
- ДПС 20.70.10Эм - Заградительный, Диаметр 205 мм, Высота подъёма 700 мм, Толщина стенки 10 мм
- ДПС 27.50.18Эм - Противотаранный, Диаметр 275 мм, Высота подъёма 500 мм, Толщина стенки 18 мм
- ДПС 27.60.18Эм - Противотаранный, Диаметр 275 мм, Высота подъёма 600 мм, Толщина стенки 18 мм
- ДПС 27.70.18Эм - Противотаранный, Диаметр 275 мм, Высота подъёма 700 мм, Толщина стенки 18 мм
Дополнительное оборудование и опции
- Электроника управления на 1 боллард
- Комплект фотоэлементов со стойками
- Светофор двухсекционный со стойкой
- Комплект радиоуправления (плата, антенна, два брелока)
- Комплект GSM управления
Первые три символа обозначают тип изделия:
ДПС - дорожный противотаранный столб;
Далее шестизначный код:
XX.yy.zz - первые два разряда - диаметр блокирующего элемента в сантиметрах (например 200-320мм)
xx.YY.zz - высота подъёма блокирующего элемента в сантиметрах ( 500-1000мм)
xx.yy.ZZ - толщина стенки блокирующего элемента в мм.
После кода идет буквенное обозначение типа привода:
xx.yy.zzГ - тип привода гидравлический с внешней гидростанцией;
xx.yy.zzГП - тип привода гидравлический с встроенной гидростанцией.
xx.yy.zzЭМ - с электромеханическим приводом.
xx.yy.zzМ - с механическим приводом.
xx.yy.zzС - стационарный противотаранный боллард.
xx.yy.zzСС - стационарный съемный противотаранный боллард.
Бренд | Silar |
Тип болларда | Подъемный, Автоматический |
Тип привода | Электромеханический |
Конструкция | Противотаранный |
Подсветка | Встроенные светодиоды |
Ударопрочность | 15 000 Дж |
Скорость подъема | 6 сек. |
Скорость опускания | 6 сек. |
Сопротивление проникновению | 250 кДж |
Сопротивление наезду | 20000 кг / 40 км/ч |
Высота болларда, мм | 700 |
Диаметр болларда, мм | 273 |
Напряжение питания | 380 В |
Потребляемая мощность, макс. | 1000 Вт |
Вес, кг | 410 |
Рабочая температура | от -60°C до +40°C |
Класс защиты (IP) | IP65 |
Гарантия | 1 год |
Страна производства | Россия |
Функция «Быстрый заказ» позволяет покупателю не проходить всю процедуру оформления заказа самостоятельно. Вы заполняете форму, и через короткое время вам перезвонит менеджер магазина. Он уточнит все условия заказа, ответит на вопросы, касающиеся качества товара, его особенностей. А также подскажет о вариантах оплаты и доставки.
По результатам звонка, пользователь либо, получив уточнения, самостоятельно оформляет заказ, укомплектовав его необходимыми позициями, либо соглашается на оформление в том виде, в котором есть сейчас. Получает подтверждение на почту или на мобильный телефон и ждёт доставки.
Оформление заказа в стандартном режиме
Если вы уверены в выборе, то можете самостоятельно оформить заказ, заполнив по этапам всю форму.
Заполнение адреса
Выберите из списка название вашего региона и населённого пункта. Если вы не нашли свой населённый пункт в списке, выберите значение «Другое местоположение» и впишите название своего населённого пункта в графу «Город». Введите правильный индекс.
Доставка
В зависимости от места жительства вам предложат варианты доставки. Выберите любой удобный способ. Подробнее об условиях доставки читайте в разделе «Доставка».
Оплата
Выберите оптимальный способ оплаты. Подробнее о всех вариантах читайте в разделе «Оплата»
Покупатель
Введите данные о себе: ФИО, адрес доставки, номер телефона. В поле «Комментарии к заказу» введите сведения, которые могут пригодиться курьеру, например: подъезды в доме считаются справа налево.
Оформление заказа
Проверьте правильность ввода информации: позиции заказа, выбор местоположения, данные о покупателе. Нажмите кнопку «Оформить заказ».
Наш сервис запоминает данные о пользователе, информацию о заказе и в следующий раз предложит вам повторить к вводу данные предыдущего заказа. Если условия вам не подходят, выбирайте другие варианты.
Если Вы хотите узнать об условиях доставки и оплаты, но не желаете о них читать, то Вы можете позвонить любому нашему сотруднику, и он обязательно Вам поможет.
Покупка за безналичный расчет
При оплате за безналичный расчет наш сотрудник свяжется с Вами, чтобы подтвердить заказ и уточнить сроки и адрес доставки. После оформления заказа сотрудник нашей компании вышлет вам счет, по которому необходимо будет произвести оплату.
После оплаты заказа к Вам приедет наш курьер, который доставит ваш заказ.
Самостоятельно забрать заказ из пунктов самовывоза Вы можете после его оплаты по безналичному расчету. Оплата доставки до пунктов выдачи транспортных компаний производится по тарифам выбранной Вами транспортной компании непосредственно в месте получения заказа.
Самовывоз из офиса нашей компании в Зеленограде, так же возможен после предоплаты по безналичному расчету, и предварительной договоренности с менеджером.
Интернет-магазин выполняет доставку любого товара своей собственной Службой доставки.
Стоимость доставки курьером
Стоимость доставки по Москве, Все товары —750 руб., бесплатная доставка от 25000 руб
Стоимость доставки по Московской области рассчитывается для каждого заказа индивидуально и зависит от суммарного веса товаров заказа и удаленности адреса доставки.
Время доставки
Время доставки согласовывается с менеджером Службы доставки, который обязательно свяжется с вами сразу после того, как вы разместите свой заказ.
Для осуществления доставки в регионы России мы пользуемся услугами компаний СДЭК, ЖелДорЭкспедиция, Автотрейдинг, Деловые Линии. В таком случае, указанными кампаниями взимается стоимость доставки по их внутренним тарифам с заказчика при получении товара.
Самовывоз
Забрать товар самостоятельно и абсолютно бесплатно можно только по адресу: Москва, Зеленоград, Панфиловский проспект, дом 10.
Забрать товар самовывозом можно по любому из адресов самовывоза указанных здесь, стоимость доставки до пункта самовывоза рассчитывается для каждого заказа по тарифам транспортных компаний.

















