Электромеханические противотаранные блокираторы SILAR выпускаются в четырёх основных исполнениях: заглубляемые и накладные — с боковым или центральным приводом. Модели с боковым приводом удобны обслуживанием без перекрытия проезда, а сам редуктор защищён от грязи и влаги. Конструкции с центральным приводом более компактны по ширине и позволяют соединять несколько блокираторов в непрерывную линию. Заглубляемые варианты устанавливаются вровень с дорожным покрытием, а накладные монтируются поверх полотна и комплектуются пандусами для плавного проезда транспорта.
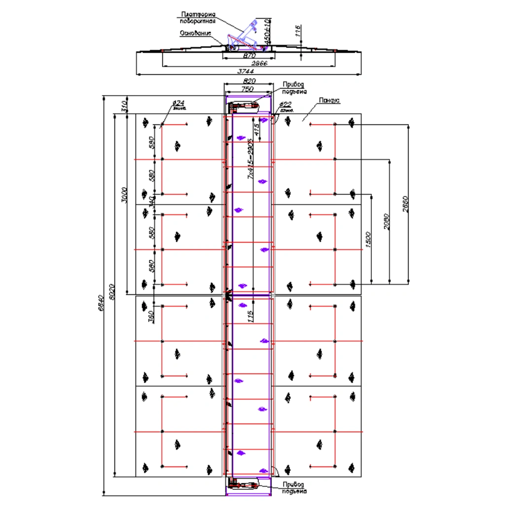
Дорожный блокиратор Silar ПЗП-6000ЭМН — это мощное противотаранное устройство накладного типа с электромеханическим приводом, предназначенное для защиты объектов от несанкционированного проезда транспорта. Конструкция состоит из двух секций по 3 метра каждая и устанавливается поверх дорожного покрытия без необходимости выемки грунта. В сложенном положении преграда выступает над дорожным полотном всего на 116 мм и может использоваться как «лежачий полицейский». Пандусы, входящие в комплект, обеспечивают плавный проезд транспорта в неактивном положении устройства.
Механизм подъёма реализован на базе двух линейных электроприводов LA36 (актуаторов) с системой подогрева, соединённых с поворотными платформами через рычажную систему. Платформа поднимается на высоту 400 ± 50 мм за 8 секунд, создавая прочное препятствие, способное выдержать удар автомобиля массой до 30 тонн на скорости 40 км/ч (энергия 1800 кДж). Управление осуществляется через шкаф с блоком ZL19N и выносной кнопочный пост. При отключении питания предусмотрен ручной режим с использованием шестигранного ключа. Все элементы конструкции защищены по классу IP66, что гарантирует полную пыле- и влагозащиту.
Платформа блокиратора выполнена из рифлёной стали с антикоррозионным покрытием и оснащена светодиодными катафотами для обозначения в тёмное время суток. Благодаря высокой надёжности, простоте обслуживания и устойчивости к экстремальным климатическим условиям, ПЗП-6000ЭМН широко применяется на КПП, промышленных предприятиях, транспортных узлах и стратегических объектах.
Особенности
- Накладной тип монтажа без земляных работ
- Две секции по 3 м с боковым расположением электромеханического привода
- Подъём платформы на 400 ± 50 мм за 8 секунд
- Приводы LA36 с системой подогрева для зимней эксплуатации
- Пандусы в комплекте обеспечивают плавный проезд
- Светодиодные катафоты для обозначения препятствия в тёмное время суток
- Степень защиты IP66, устойчивость к влаге и пыли
Комплект поставки
- Преграда защитная подъёмная ПЗП-6000 ЭМН — 1 шт.
- Паспорт изделия СР210-86.10.00.00ПС — 1 шт.
- Шкаф управления с блоком ZL170 — 1 шт.
- Руководство по эксплуатации ZL170 — 1 шт.
- Выносной кнопочный пост — 1 шт.
- Монтажный комплект (анкерные болты М20×300) — 1 комплект
Дополнительные опции (по заказу)
- Светофор двухпозиционный
- Блок дистанционного радиоуправления
- Система бесперебойного питания для работы при отключении электросети
Преимущества
- Быстрый монтаж без врезки в дорожное покрытие
- Надёжная работа при температурах от −60 °C до +40 °C
- Ручное управление при отсутствии электропитания
- Высокая механическая прочность и антикоррозионная защита
- Сертификат соответствия № РОСС RU.НА36.Н01603
Недостатки
- Большая масса конструкции и необходимость места под пандусы
- Меньшая противотаранная устойчивость без бетонного основания
Устройство и работа
Основными частями являются основание, платформа поворотная заградительная и привод подъёма.Конструктивно основание и платформа поворотная представляют собой рамы, изготовленные из стального проката (рифленый лист, швеллер и профильная труба). Поворотная платформа крепится к основанию с помощью петель и блокирующих тяг (цепей). Платформа оснащена светодиодными катафотами, позволяющими определить препятствие в темное время суток.
Привод подъема – линейный привод LA36 (актуатор). Поворотный вал, установленный внизу основания в опоре с подшипником скольжения, посредством рычага связывает привод с поворотной платформой. В холодное время года предусмотрен подогрев привода термокабелем. В пульте управления есть соответствующий выключатель.
Привод подъема ПЗП может находиться как справа, так и слева относительно движения транспорта в зависимости от условий подключения.
Работа ПЗП
С пульта управления ПЗП подается напряжение на привод, который через рычаг сообщает крутящий момент валу, а тот в свою очередь приводит в движение поворотную платформу, и она занимает наклонное заградительное положение.
Высота подъёма ограничивается ходом штока привода.
В случае сбоя питания необходимо использовать привод ручного управления!
Для разблокировки привода необходимо:
- снять защитный кожух
- снять заглушку привода
- вращением шестигранного ключа S6 привести в движение шток привода
Технические характеристики:
Основные параметры- Тип монтажа: накладной с пандусами
- Длина заградительной платформы: 6000 мм (2 × 3 м)
- Высота подъёма заградительной платформы: 450 ± 50 мм
- Высота преграды в сложенном положении: 116 мм
- Время подъёма платформы: не более 8 с
- Тип привода: электромеханический (2× актуатор LA36)
- Максимальная нагрузка на ось: до 30 т
- Максимально выдерживаемая энергия удара: 1800 кДж (30 т на 40 км/ч)
- Напряжение питания: 220 В / 50 Гц
- Напряжение питания привода: 24 В пост. тока
- Мощность каждого привода: 0,24 кВт
- Максимальная потребляемая мощность: 1,2 кВт
- Исполнение: УХЛ1 по ГОСТ 15150
- Диапазон температур эксплуатации: от −60 °C до +40 °C
- Степень защиты: IP66
- Габариты (Д×Ш×В): 6640 × 3744 × 328 мм
- Масса изделия: не более 1000 кг; с пандусами — 3000 кг
- Гарантийный срок — 12 месяцев со дня продажи
- Гарантия не распространяется на лакокрасочное покрытие
Бренд | Silar |
Тип блокиратора | Автоматический |
Тип привода | Электромеханический |
Конструкция | Противотаранный |
Нагрузка на ось | 30 тонн |
Скорость подъема | 8 сек. |
Сопротивление проникновению | 1 800 кДж |
Сопротивление наезду | 30000 кг / 40 км/ч |
Тип монтажа | Поверхностный |
Ширина, мм | 6640 |
Высота, мм | 450 |
Глубина, мм | 3744 |
Напряжение питания | 220 В |
Потребляемая мощность, макс. | 1200 Вт |
Вес, кг | 3000 |
Рабочая температура | от -60°C до +40°C |
Класс защиты (IP) | IP66 |
Гарантия | 1 год |
Страна производства | Россия |
Функция «Быстрый заказ» позволяет покупателю не проходить всю процедуру оформления заказа самостоятельно. Вы заполняете форму, и через короткое время вам перезвонит менеджер магазина. Он уточнит все условия заказа, ответит на вопросы, касающиеся качества товара, его особенностей. А также подскажет о вариантах оплаты и доставки.
По результатам звонка, пользователь либо, получив уточнения, самостоятельно оформляет заказ, укомплектовав его необходимыми позициями, либо соглашается на оформление в том виде, в котором есть сейчас. Получает подтверждение на почту или на мобильный телефон и ждёт доставки.
Оформление заказа в стандартном режиме
Если вы уверены в выборе, то можете самостоятельно оформить заказ, заполнив по этапам всю форму.
Заполнение адреса
Выберите из списка название вашего региона и населённого пункта. Если вы не нашли свой населённый пункт в списке, выберите значение «Другое местоположение» и впишите название своего населённого пункта в графу «Город». Введите правильный индекс.
Доставка
В зависимости от места жительства вам предложат варианты доставки. Выберите любой удобный способ. Подробнее об условиях доставки читайте в разделе «Доставка».
Оплата
Выберите оптимальный способ оплаты. Подробнее о всех вариантах читайте в разделе «Оплата»
Покупатель
Введите данные о себе: ФИО, адрес доставки, номер телефона. В поле «Комментарии к заказу» введите сведения, которые могут пригодиться курьеру, например: подъезды в доме считаются справа налево.
Оформление заказа
Проверьте правильность ввода информации: позиции заказа, выбор местоположения, данные о покупателе. Нажмите кнопку «Оформить заказ».
Наш сервис запоминает данные о пользователе, информацию о заказе и в следующий раз предложит вам повторить к вводу данные предыдущего заказа. Если условия вам не подходят, выбирайте другие варианты.
Если Вы хотите узнать об условиях доставки и оплаты, но не желаете о них читать, то Вы можете позвонить любому нашему сотруднику, и он обязательно Вам поможет.
Покупка за безналичный расчет
При оплате за безналичный расчет наш сотрудник свяжется с Вами, чтобы подтвердить заказ и уточнить сроки и адрес доставки. После оформления заказа сотрудник нашей компании вышлет вам счет, по которому необходимо будет произвести оплату.
После оплаты заказа к Вам приедет наш курьер, который доставит ваш заказ.
Самостоятельно забрать заказ из пунктов самовывоза Вы можете после его оплаты по безналичному расчету. Оплата доставки до пунктов выдачи транспортных компаний производится по тарифам выбранной Вами транспортной компании непосредственно в месте получения заказа.
Самовывоз из офиса нашей компании в Зеленограде, так же возможен после предоплаты по безналичному расчету, и предварительной договоренности с менеджером.
Интернет-магазин выполняет доставку любого товара своей собственной Службой доставки.
Стоимость доставки курьером
Стоимость доставки по Москве, Все товары —750 руб., бесплатная доставка от 25000 руб
Стоимость доставки по Московской области рассчитывается для каждого заказа индивидуально и зависит от суммарного веса товаров заказа и удаленности адреса доставки.
Время доставки
Время доставки согласовывается с менеджером Службы доставки, который обязательно свяжется с вами сразу после того, как вы разместите свой заказ.
Для осуществления доставки в регионы России мы пользуемся услугами компаний СДЭК, ЖелДорЭкспедиция, Автотрейдинг, Деловые Линии. В таком случае, указанными кампаниями взимается стоимость доставки по их внутренним тарифам с заказчика при получении товара.
Самовывоз
Забрать товар самостоятельно и абсолютно бесплатно можно только по адресу: Москва, Зеленоград, Панфиловский проспект, дом 10.
Забрать товар самовывозом можно по любому из адресов самовывоза указанных здесь, стоимость доставки до пункта самовывоза рассчитывается для каждого заказа по тарифам транспортных компаний.













